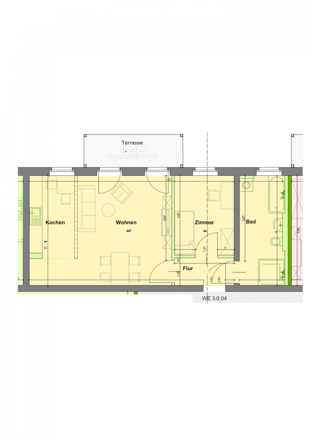
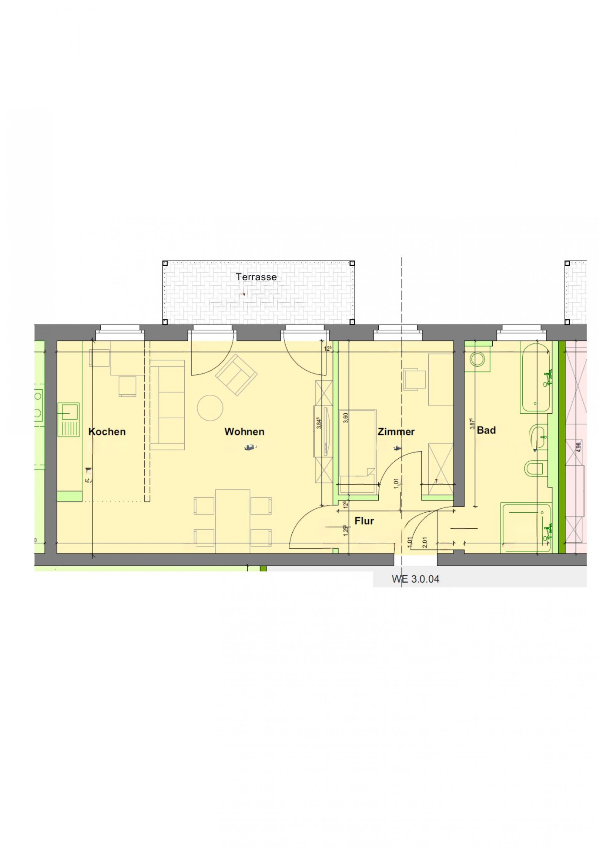
WE 3.0.04

WE 3.0.04
Wohnungsbezeichnung: WE 3.0.04
Bezugstermin ab: sofort
Anzahl Zimmer: 2
Wohnungsgröße in m²: 59,00
Balkon / Terrasse: Terrasse
Kaltmiete 15,00 €: 885,00 €
BKV 4,00 €: 236,00 €
Warmmiete: 1.121,00 €
KfZ-Platz (bei Bedarf): 25,00 €

Barrierefreie Wohnung in exklusiver Wohnresidenz „Gut Branitz“, Cottbus – Täglich SPA-Nutzung inklusive

Wohnen wie im Urlaub – direkt am parkähnlichen Gut Branitz und unweit des Branitzer Parks. Die modern sanierten Gebäude der Wohnresidenz Branitz bieten rund 150 barrierefreie Ein- bis Dreiraumwohnungen mit Aufzug, bodengleichen Duschen sowie Balkon oder Gartenterrasse.

Ihre Vorteile im Objekt
✔ Nutzung Spa Branitz mit großem Schwimmbad, Saunen & Fitness täglich inklusive
24h-Rezeption & Nachtbewachung – Sicherheit rund um die Uhr
✔ Große, grüne Außenanlagen mit Grillplatz & Außenschach
✔ Vielfältige Hobby- und Gemeinschaftsräume (z. B. Kegelbahn, Billard, Dart)
✔ Einkaufs- und Versorgungsmöglichkeiten direkt im Haus (frische Backwaren, Vollsortiment)
✔ Friseur, Hausarztpraxis, Physiotherapie, Tages- und Hauskrankenpflege vor Ort
✔ Busanbindung fußläufig – kurze Wege in die Stadt
✔ Optional: PKW-Stellplatz + Kellerbox möglich

Lage & Lebensqualität
Die Residenz liegt in einer ruhigen, gepflegten Lage in Cottbus-Branitz, eingebettet in Natur und mit direktem Zugang zu den Branitzer Parklandschaften – ideal für aktive Spaziergänge und Freizeit im Grünen.

Wohnen mit Komfort
Barrierefrei, seniorengerecht, modern ausgestattet – perfekt für selbstständiges Leben im Alter mit Sicherheit und Service, ohne auf Lebensqualität zu verzichten.

📞 Jetzt Besichtigung oder Infos sichern:
Wohnresidenz & Spa Branitz GmbH & Co. KG
Heinrich-Zille-Str. 120, 03044 Cottbus
Tel.: 0355 75 233 194
✉️ Diese E-Mail-Adresse ist vor Spambots geschützt! Zur Anzeige muss JavaScript eingeschaltet sein!